20202

Back

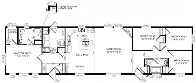
Floor Plan

20202

Back